Được làm đặc biệt bởi những khung thép hình vuông đan xen nhau. Mỗi khung nhỏ lại được đặt những chậu cây xanh thiết kế vừa khít. Bên trên chủ nhà còn khéo léo tạo nên nững chiếc võng lưới làm nơi nghỉ ngơi thư giãn lơ lửng tuyệt đẹp.
Cây trên sân thượng là những cây xanh có chức năng đặc biệt. Nó không chỉ làm đẹp không gian mà còn là một bộ máy lọc không khí vô cùng lý tưởng. Những cây xanh được trồng nơi đây đa phần là những loại cây có khả năng hấp thụ độc tố độc hại từ không khí mang đến mội trường trong lành, thư thái hoàn toàn cho con người.

Khu ban công nhỏ với màu xanh mát mắt của cây cối nổi bật giữa một “rừng bê tông” trong khu dân cư tại Hà Nội.

Toàn bộ không gian 18m2 trên sân thượng của ngôi nhà này được thiết kế thành một không gian nghỉ ngơi, thư giãn tuyệt đẹp.

Ngoài những khung thép hình vuông được thiết kế đặc biệt đan xen nhau, mặt sàn khu ban công nhỏ còn được rải một lớp đá răm trắng.

Cây xanh được trồng nơi đây không chỉ làm đẹp cho không gian mà còn có chức năng như một bộ máy lọc không khí làm sạch môi trường.


Những chiếc võng lưới được thiết kế chắc chắn lơ lửng giữa không trung dành làm nơi cho chủ nhà có thể nằm nghỉ ngơi đọc sách, ngắm cây hay một không gian thư giãn hoàn toàn để bạn có thể lắng nghe từng chuyển động của thiên nhiên xung quanh.

Khu vực ở giữa được thiết kế với những bậc tam cấp lớn nhỏ giúp chủ nhà dễ dàng bước lên chiếc võng lơ lửng. Đây cũng là nơi giúp chủ nhà có thể ngồi để ngắm khu vườn tuyệt đẹp.

Đây thực sự là một ý tưởng tuyệt vời khi mà bầu không khí tại các thành phố lớn đang bị ô nhiễm trầm trọng gây ảnh hưởng không nhỏ đến sức khỏe con người.

Việc trồng cây xanh ở khắp mọi nơi không chỉ giúp cải thiện môi trường sống mà còn mang con người đến gần với thiên nhiên.

Khu vườn tuyệt đẹp nhìn từ bên trên.

Cây xanh được trồng trong các chậu cây nhỏ đặt đan xem khung thép.

Khu vườn có rất nhiều loại cây từ cây bụi, cây leo cho đến các loại hoa.

Màu xanh của cỏ cây hoa lá kết hợp với sắc trắng tạo nên một khung cảnh không chỉ đẹp mà con rất lạ mắt.

Mô hình khu vườn trên sân thượng.

Sơ đồ bố trí khu vườn.

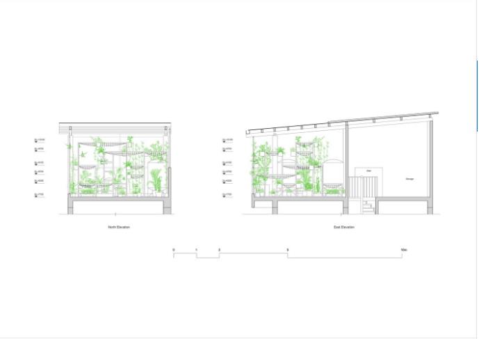
Sơ đồ mặt cắt.
Theo Trí thức trẻ/Archdaily

Không có nhận xét nào:
Đăng nhận xét