Ngôi nhà độc lạ này được thiết kế thích hợp với gia đình có con nhỏ. Thay vì đổ toàn bộ sàn bê tông như bình thường thì chủ ngôi nhà này lại trừ lại hai khoảng trống trên sàn tầng 2 để mắc võng lưới làm sân chơi thú vị cho con trẻ.
Với hai chiếc lưới mắc cố định, trẻ nhỏ có thể nằm chơi, đọc sách hoặc chạy nhảy trên đó mà bố mẹ không hề phải lo sợ bị ngã. Việc sử dụng sàn lưới này là một ý tưởng thông minh, nó không những đóng vai trò giúp không gian giữa các tầng trở nên thông thoáng mà còn là sân chơi trong nhà lý tưởng cho trẻ cũng như nơi nghỉ ngơi thư giãn cho người lớn.
Chiếc võng lưới còn giúp bố mẹ có thể dễ dàng quan sát con cái của mình khi đang tiếp khách cũng như lúc chuẩn bị cho bữa ăn.

Tầng 1 của ngôi nhà được thiết kế mở thoáng rộng và rất tiện cho người sử dụng. Nội thất trong nhà hầu hết đều được làm từ gỗ tạo không gian ấm áp và thân thiện.


Khác với những ngôi nhà bình thường, sàn tầng 2 của ngôi nhà này được thiết kế đặc biệt với những chiếc võng lưới treo lơ lửng ngay trên đầu.

Một sân chơi lý tưởng ngay trong nhà cho những đứa trẻ. Nhờ được làm rất chắc chắn và gắn cố định nên những đứa trẻ có thể thoải mái chơi đùa mà không hề phải lo sợ.

Bố mẹ ở đưới tầng 1 có thể dễ dàng quan sát mọi hoạt động của con nhỏ trên tầng 2.

Chiếc võng độc đáo này còn là không gian thư giãn và nghỉ ngơi lý tưởng cho người lớn.

Bạn có thể nằm đọc sách và thậm chí ngủ ngon lành ngay trên chiếc võng này.

Không gian tầng 1 thông thoáng nhờ rất nhiều cửa sổ. Trong ảnh là khu vực bếp và bàn ăn rộng được bố trí bên cạnh rất nhiều cây xanh.

Phòng khách được bài trí vô cùng đơn giản, thoáng sáng cạnh cửa sổ.


Nơi đây được thiết kế khá ấn tượng với những khối hình học treo lơ lửng giữa bàn.

Sâu bên trong là phòng học với bàn và giá sách cao sát trần.

Cầu thang được thiết kế nhỏ gọn đặt giữa nhà với những ô thoáng lớn nhỏ.

Những ô thoáng này giúp cho ánh sáng từ cầu thang có thể lan tỏa các phòng và ngược lại.

Với thiết kế đặc biệt này, vào ban đêm chỉ cần bật một nguồn đèn, ánh sáng có thể chiếu sáng nhiều khu vực, giúp tiết kiệm điện năng.

Ngôi nhà có tông màu chủ đạo là trắng và gỗ thông với nội thất đơn giản, nhỏ gọn.

Với rất nhiều ô cửa sổ lớn nhỏ nên ngôi nhà lúc nào cũng tràn ngập ánh sáng tự nhiên.

Không gian nghỉ ngơi cả cả gia đình được đưa lên tầng 2.

Phòng ngủ bài trí đơn giản và tiện nghi với tủ ấm tường.

Góc học tập dành cho các con trên tầng 2.

Khu vệ sinh thoáng sáng và sạch sẽ.

Sơ đồ bố trí không gian tầng 1.

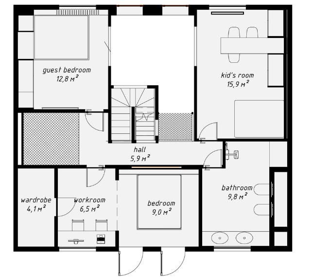
Sơ đồ bố trí không gian tầng 2.

Mặt cắt ngôi nhà.
Theo Trí thức trẻ/Archdaily

Không có nhận xét nào:
Đăng nhận xét